︎
JÉRÔME MALPEL
●
ANDREZIEUX
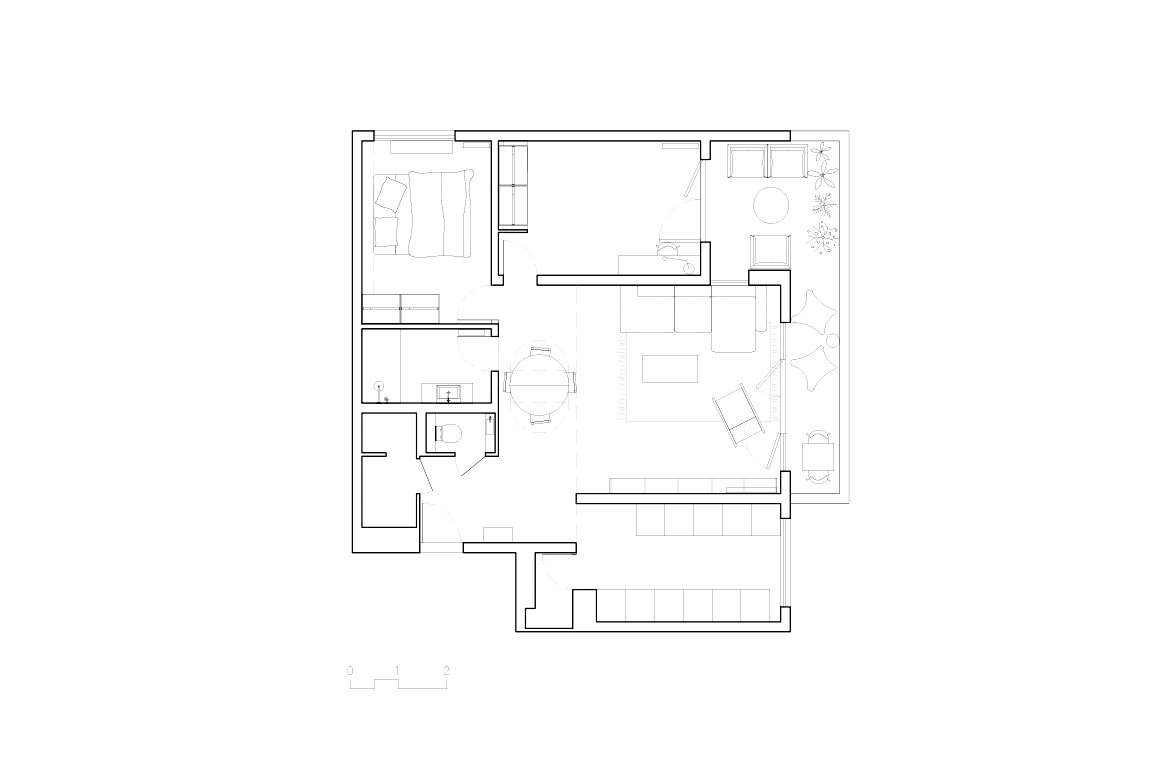
Apartment, Paris - 2023
ARCHITECTURE
INDEX
INFORMATION
CONTACT
●●●