︎
JÉRÔME MALPEL
●
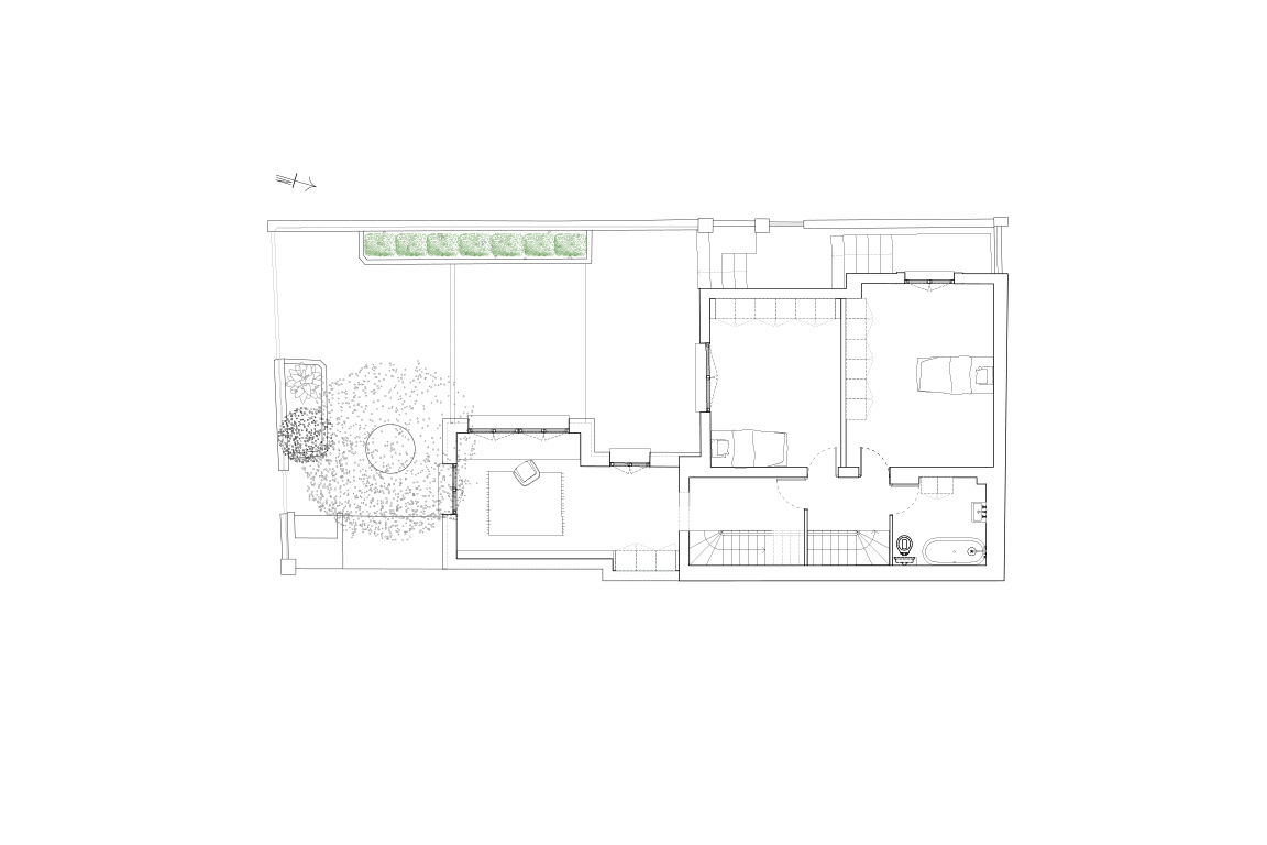
FAUVELLES
House extension, La Garenne-Colombes - 2025
ARCHITECTURE
INDEX
INFORMATION
CONTACT
●●●