︎
JÉRÔME MALPEL
●
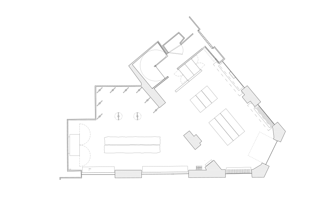
SANDQVIST FLAGSHIP
flagship store, Paris - 2019
Photography: Sandqvist
Concept: Wingårdhs
lighting: Anker&co
furniture: Input
ARCHITECTURE
INDEX
INFORMATION
CONTACT
●●●