︎
JÉRÔME MALPEL
●
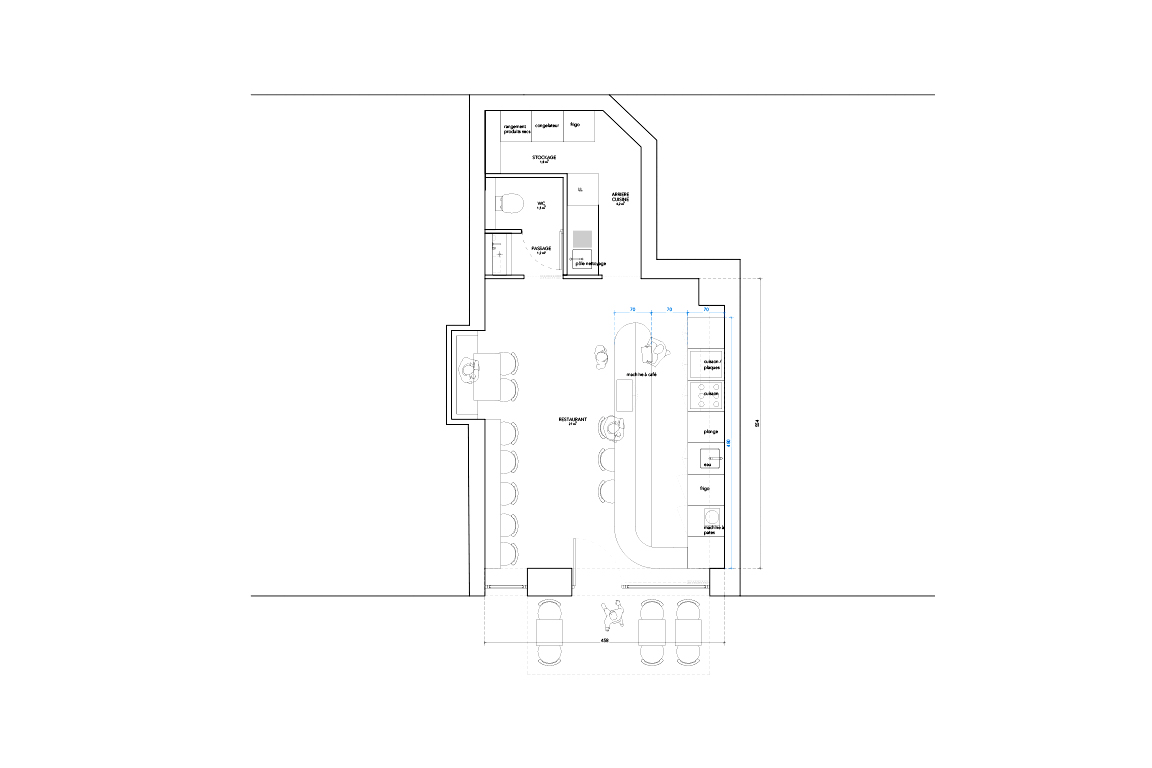
SAINT SERNIN
Restaurant, Bordeaux - 2025
ARCHITECTURE
INDEX
INFORMATION
CONTACT
●●●